Kelly Wearstler For Visual Comfort Signature Rousseau Large Articulating Chandelier In Bronze With Seeded Glass

$5,999

Chairish

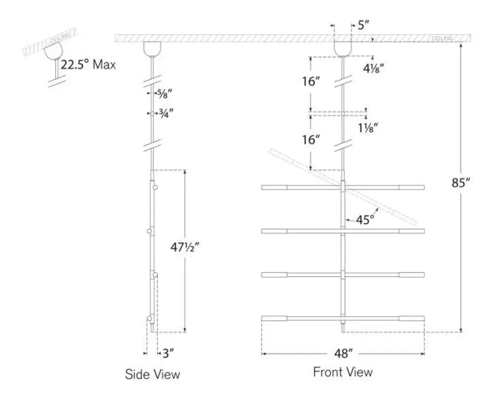
Rousseau Large Articulating Chandelier in Bronze with Seeded Glass Designer: Kelly Wearstler Fixture Height: 47.5" Min. Custom Height: 65" O/A Height: 85" Canopy: 5" Round Mounting: Rod Shade Detail: Seeded Glass Socket: Dedicated LED Wattage: 35w (2800lm) Safety Rating Location: DAMP Note: Custom Height Available

2 reviews
4.5